hammer icon
Local Auction

Immobilienverkauf in Krefeld im Bundesland Nordrhein-Westfalen - öffentliche Versteigerung

Großzügige 4-Zimmer-Dachgeschosswohnung

share icon
Teilen
favorite icon
Speichern
Property Outside Image
Property Inside Image perspectiv 1Property Inside Image perspectiv 2
Property Inside Image perspectiv 3
Property Inside Image perspectiv 4
Freischalten
5 / 5
85’000 EUR Schätzwert
Hülser Straße 466, 47803 Krefeld, Stadtmitte
Entdecken Sie alle Immobilienversteigerungen in der Listenansicht!
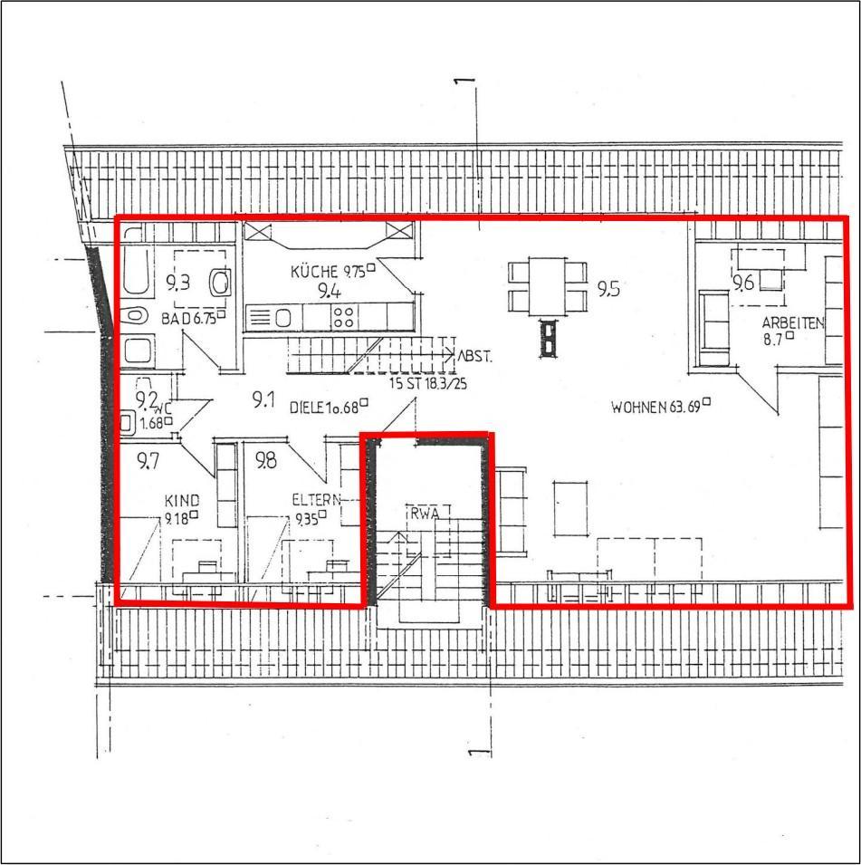
Bei dieser Zwangsversteigerung handelt es sich um eine gut geschnittene 4-Zimmer-Eigentumswohnung im Dachgeschoss eines unbenannten Wohngebäudes, erbaut im Jahr 1962. Die Wohnung bietet eine großzügige Wohnfläche von ca. 119,78 m² und zeichnet sich durch ihr Potenzial für individuelle Gestaltungsmöglichkeiten aus. Das geschätzte Marktwert liegt bei 85.000,00 EUR. Eine Innenbesichtigung konnte bisher nicht durchgeführt werden, weshalb Interessenten gebeten werden, sich die Gegebenheiten vor der Versteigerung näher anzusehen. Die Versteigerung findet am 06. November 2025 um 10:00 Uhr statt. Für die Sicherheitsleistung bitten wir darum, den Verwendungszweck sowie die relevanten Kontoinformationen bei der Überweisung zu beachten. Bei Fragen oder zur Klärung weiterer Details steht Ihnen Herr Maertin unter der Telefonnummer 0203-2815823232 oder per E-Mail holger.maertin@spk-du.de zur Verfügung.
Wohnung
Änderungshistorie
Grundstück
Grundbuch: Krefeld Blatt 22193
Objektbeschreibung
Laut Sachverständigengutachten handelt es sich um eine 4-Zimmer-Eigentumswohnung im Dachgeschloss. Gebäudebaujahr: 1962, Wohnfläche: ca. 119,78 m² Eine Innenbesichtigung konnte nicht erfolgen. Sicherheitsleistung: Kontoverbindung ZZJ Hamm, IBAN: DE08 300 500 00000 147 4816, LB Hessen-Thüringen, Verwendungszweck: AG Krefeld, Geschäftszeichen, Sicherheit, Datum der Versteigerung Ansprechpartner: Herr Maertin, Tel. 0203-2815823232, holger.maertin@spk-du.de, Zeichen: 23230-1162746021
Werte
Amtliche Schätzung
85’000 EUR
Street View

Entdecken Sie alle Immobilienauktionen mit zusätzlichen Details auf Local Auction.

Greifen Sie jetzt auf Dokumente, Besichtigungstermine und Beschreibungen aller Immobilien bei Local Auction zu.

Was macht Local Auction einzigartig?

  • Laden Sie detaillierte Dokumente für alle Immobilien herunter
  • Finden Sie alle Besichtigungstermine und -zeiten
  • Durchstöbern Sie detaillierte Beschreibungen und Bilder der Immobilien
  • Bleiben Sie mit den neuesten Steigerungsbedingungen und Updates auf dem Laufenden

Mehr Wissen rund um Zwangsversteigerungen

Haftungsausschluss
Dieser Inhalt dient lediglich zur allgemeinen Information und wird ohne Garantie hinsichtlich Genauigkeit oder Vollständigkeit bereitgestellt. Beschreibungen von Eigenschaften, Dokumenten und Abbildungen könnten ungenau sein. Es wird empfohlen, eigene Recherchen durchzuführen und bei Bedarf unabhängigen fachlichen Rat einzuholen.
Termine
bell Icon
Versteigerung
Icon before dateDonnerstag, 01. Oktober 2026
Icon before time14:00 Uhr
Icon before address
Sample Address
City
Country
Besichtigung
Icon before dateDonnerstag, 05. Oktober 2023
Icon before time14:00 Uhr
Icon before address
Sample Address
City
Country
Bedingungen
Icon before dateDienstag, 10. Oktober 2023
Icon before time14:00 Uhr
Icon before address
Sample Address
City
Country
doc icon
Steigerungsbedingungen
Veröffentlichung
Icon before dateSonntag, 15. Oktober 2023
Freischalten
Kontakt
link icon
Betreibungsamt Balgach
location icon
Turnhallestrasse 1
9436 Balgach
phone icon
058 228 80 56
Freischalten
·······
Germany logoDeutschland
© 2025 Local Auction